產品介紹
低溫截止閥 DJ41F-16P/25P/40P
低溫閥門是指能夠在低溫工況下使用的閥門,通常把工作溫度低于-40℃的閥門稱為低溫閥門、低溫閥門包括低溫球閥、低溫閘閥、低溫截止閥、低溫蝶閥、低溫止回閥等,主要用于三十萬噸乙烯,液化天然氣等化工裝置上。輸出的液態低溫介質如乙烯、液氧、液氫、液化天然氣、液化石油產品等,不但易燃易爆,而且在升溫時要氣化,氣化時,體積膨脹數百倍。低溫閥門是石油化工、空氣分離、天然氣等工業不可缺少的重要設備之一,其質量的優劣決定著能否安全、經濟、持續地生產。
低溫球閥主要特點:
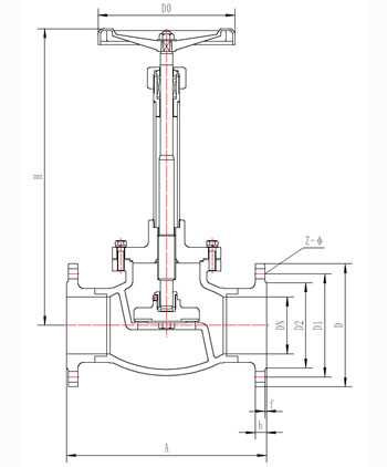
低溫截止閥,對于溫度高于-50℃,一般不采用長頸結構,對于溫度低于-50℃的截止閥,頸部長度T一般為500mm,或根據我公司的設計和計算確定.低溫截止閥主要用于輸出液態低溫介質如乙烯、液氧、液氫、液化天然氣、液化石油產品等,不但易燃易爆,而且在升溫時要氣化,氣化時,體積膨脹數百倍。
液化天然氣閥門的材料非常重要,材質不合格,會造成殼體及密封面的外漏或內漏;零部件的綜合機械性能、強度和鋼度滿足不了使用要求甚至斷裂。導致液化天然氣介質泄漏引起爆炸。因此,在開發、設計、研制液化天然氣閥門的過程中,材質是首要關鍵的問題。閥體、閥蓋采用:LCB(-46℃)、LC3(-101℃)、CF8(304)(-196℃
生產的低溫截止閥經過特殊的低溫處理,將粗加工的零件置于冷卻介質中數小時(2-8小時),以釋放應力,確保材料的低溫性能,保證精加工尺寸,以防止閥門在低溫工況時,因溫度變化造成變形而導致的泄漏。
產品特點及用途:低溫截止閥適用于甲烷、液態天然氣、已烯、二氧化碳、液氨、液氧、液氮、液氫等低溫介質。
產品采用標準: BS1873
GB/T 9113
GB/T 12221
GB/T 13927
GB/T 12235
主要性能規范: 公稱尺寸DN50~300 公稱壓力PN16~PN40
| 公稱壓力 | PN16 | PN25 | PN40 |
| 殼體試驗壓力(MPa) | 2.4 | 3.75 | 6 |
| 密封試驗壓力(MPa) | 1.76 | 2.75 | 4.4 |
| 適用介質 | 液氮 液氧 液氬 液化天然氣 液態二氧化碳 液態丙烷等 | ||
| 適用溫度 | -196°C | ||
主要零部件及材料:
| 零件名稱 | 材質 |
| 閥體 | 0Cr18Ni9 |
| 閥蓋 | 0Cr18Ni9 |
| 閥瓣 | 0Cr18Ni9/H62+PTFE |
| 閥桿 | 0Cr18Ni9 |
| 纏繞墊 | 304/PTFE |
| 填料 | PTFE/PCTFE |

TEL:

E-mail us
PDF Download
Inquiry





